发布时间:2019-05-23 17:13:26 点击:5523
导语:当置身在轻奢优雅的家中,暮然回首,处处是景,这就是梦中的华尔兹所要传达的浪漫与唯美。本案摒弃了初稿的新奇与浮华,着重强调简洁与优雅,明晰的线条与有得体有度的装饰使整个居室更加光彩动人。无论在材质选择,还是色彩的刻画上,家具以及配饰都以其优雅唯美的姿态,展现鲜明的时代气息。下面请跟随摄影师的脚步,一起欣赏红蚂蚁装饰这套艳惊四座的实景作品。
设计丨杨藩红
地址丨华润·城立方
机构丨红蚂蚁装饰
面积丨140平米
房型丨复式
风格丨美式轻奢
当置身在轻奢优雅的家中,暮然回首,处处是景,这就是梦中的华尔兹所要传达的浪漫与唯美。本案摒弃了初稿的新奇与浮华,着重强调简洁与优雅,明晰的线条与有得体有度的装饰使整个居室更加光彩动人。无论在材质选择,还是色彩的刻画上,家具以及配饰都以其优雅唯美的姿态,展现鲜明的时代气息。下面请跟随摄影师的脚步,一起欣赏红蚂蚁装饰这套艳惊四座的实景作品。
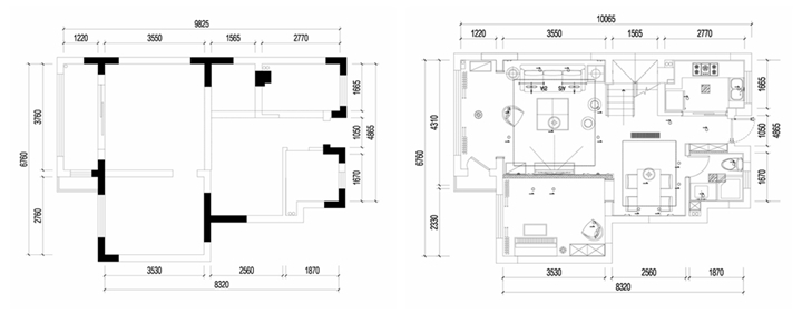
(一层)
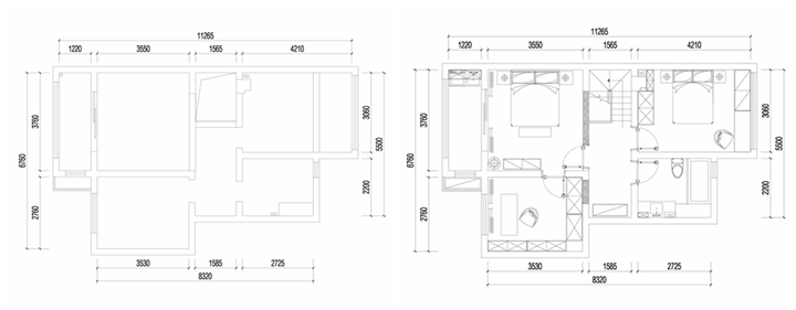
(二层)
客厅·色彩点缀
客厅以经典的白色系为主背景色,配上深褐色的沙发和茶几,并在细节处运用金属元素与电视背景的浅褐色相呼应,将美式轻奢的韵味巧妙的融入其中。
整体空间色彩追求的是和谐一致,软装色彩与环境背景色形成协调对比的同时,不忘表达出空间轻奢的主题,而轻奢又能跳出背景,成为“主角”。
餐厅·光色合一
餐厅的空间在与客厅衔接的时候注重整体性的打造,墙纸、墙体造型以及地砖勾线在色彩与形状上都做到了相互辉映。
同样搭配深色的餐桌和白色餐椅,点缀在白色空间里形成对比与互补,增强聚合力,营造用餐的祥和氛围。
卧室·成套的享受
在与刘女士沟通的时候,她就表达了对套房的强烈喜爱,所以在空间规划上,为了做到尽可能的开放,将原来的四房改成三房,这样就可以满足客户所求,打造一个卧室+书房的舒适实用的套房格局。
卧室整体以白、金为主色调,整面的衣柜完全满足了日常的收纳需求,同时飘窗的设计更是让刘女士更多了一个随处阅读的场所。
书房相较于其他空间在颜色的运用上则更加沉稳,给人一种文化经久积淀的感觉,金属桌角的选择以及流苏形吊灯的搭配则给整体空间带来了更多活泼感。
休闲室·色彩堆砌的闲适
对高品质生活有一定追求的刘女士,学习钢琴多年,新家的装修自然要为这个好伙伴找一处地方安放,同时在这个独立的房间内,找一处靠窗的角落,用沉稳的暗红搭建出静谧的一隅,闲暇之余在这里听听音乐、看看书,不失为繁忙工作之后的一种放松与享受。
厨房
卫生间
本案在结构上最大限度的做到动线合理,空间上也尽可能的通透宽敞,在满足日常功能需求的同时,寄予户主精神愉悦放松的空间。在古典美学规范下,采用现代先进的工艺技术和新材质,搭配应景色彩重新诠释美式轻奢的精神内涵,具有端庄,雅致,明显的时代特征。更多红蚂蚁装饰案例进入官网经典案例页面,多种风格案例供您参考。
上一篇: 苏州装修公司红蚂蚁装饰实力诠释现代轻奢风
请认真填写您的正确信息
2025-12-19 16:24:00
正确的装修顺序是什么呢?装修时间几点到几点不算扰民呢?今天小编为大家带来的是正确的装修顺序和装修时间,希望对大家在装修房屋的时候能有所参考,下面一起来看看吧!
2025-12-16 14:53:00
美式风格装修以其自由、舒适和实用主义的特质,成为现代家居设计中广受欢迎的风格选择。这种风格融合了传统美式的历史感与现代设计的简洁性,创造出既温馨又时尚的居住空间。
2025-12-13 14:36:00
装修房子应认识的知识点有哪些呢?装修房子应该注意哪些细节呢?今天小编为大家带来的是装修房子应认识的知识点和装修房子应该注意细节,希望对大家在装修房屋的时候能有所帮助,下面一起来看看吧!
2025-12-12 14:53:00
装修新房是件令人兴奋的事,但装修后的入住时间却需要科学评估。本文将专业分析"装修一个月能住人吗"和"多久才能正式入住"这两个核心问题,帮助您做出安全决策。
2025-12-11 14:04:00
装修攻略是什么呢?装修注意事项有哪些呢?今天小编为大家带来的是装修攻略大全及注意事项,希望对大家在装修房屋的时候能有所帮助,下面一起来看看吧!
2025-12-10 14:19:00
风水学作为中国传统文化的重要组成部分,对家居装修中的颜色选择有着深远影响。客厅作为家庭活动的核心区域,其颜色搭配不仅关乎美观,更与家庭运势、成员健康密切相关。本文将系统分析客厅颜色的风水禁忌与选择建议,帮助您营造和谐的家居环境。