发布时间:2019-04-12 15:27:41 点击:7455
导语:在装饰与布置中最大限度的体现空间与家具的整体协调。今天小编带领大家一起欣赏一套出自苏州装修公司红蚂蚁装饰的现代风格实景案例,喜欢大家喜欢。
现代风格即现代主义风格,现代主义也称功能主义,顾名思义,重视功能和空间组织,注重发挥结构构成本身的形式美,造型简洁,反对多余装饰,尊重材料的特性。现代风格的居室,无论房间大小,一定要显得宽敞。不需要繁琐的装潢和过多家具,在装饰与布置中最大限度的体现空间与家具的整体协调。今天小编带领大家一起欣赏一套出自苏州装修公司红蚂蚁装饰的现代风格实景案例,喜欢大家喜欢。
项目信息
设计丨范方艾
地址丨狮山原著
机构丨红蚂蚁装饰
面积丨170㎡
户型丨4室2厅3卫
风格丨现代
造价丨60万
施工周期丨4-6个月
业主需求丨时尚简洁,大方,储物多
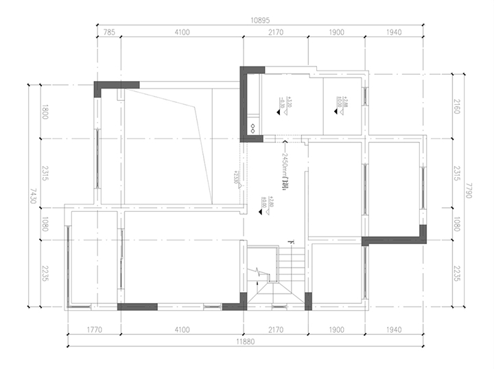
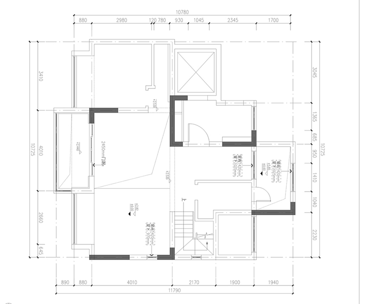
原始结构图
本案即为经典的现代风格实例,整个硬装装修时间为4个月,软装全部搭配好用了近6个月左右的时间,业主对最终呈现出来的效果非常满意。
本案借用大理石的整洁与天然的纹理特征,将其大量运用于装饰上,电视背景墙是与业主一起精心挑选的鱼肚白大理石,楼梯则运用了爵士白云朵拉灰大理石拼色,使整体感觉显得简洁大气。
考虑到楼梯比较窄,所以楼梯的扶手只用了一面的玻璃扶手,另一边用了玻璃隔断的设计,开阔了空间也起到了很好的点缀作用。
整体生活功能区在家具的选择上也遵循着简约现代的风格特色,皮质的沙发非常有质感,大理石台面的餐桌和茶几,也让整个空间又上升了一个档次。
餐厅的实木护墙板背景嵌上金属线条,与电视背景墙相呼应。黑灰色系的餐边柜和餐桌椅与客厅沙发茶几呼应的同时,将简洁的风格特色展现的淋漓尽致。
厨房在满足日常功能需求的同时,增设了吧台,为平日的简餐、品茗提供了一个富有情调的角落。黑色金属推拉移门配上墨色玻璃,让整体色调统一的同时,尽显浓浓的品质格调。
书房的着重点在软装的搭配上,遵循整体居室黑灰的色调,书架及桌椅的搭配上也将这份简约延续,大理石台面的书桌成为整个空间的一个增色亮点。
干湿功能区通过玻璃移门很好的进行阻隔,宽大的浴缸与淋浴区放在一起,节省空间的同时功能齐全,带烘干功能的毛巾架及智能马桶预留插座等功能性配件也一应俱全。
卧室的整体色调偏暗,但不沉闷,床头的软包背景墙将冰冷的墙面覆盖,给人一种温暖的感觉,拉上窗帘在此美美睡上一觉,妙哉!
有人会说现代风格太简单了,放点家具就好了。其实不然,少即是多的设计理念是很多设计师推崇的,而“少”的运用却是极难的。
从整体色调的把控,到整体家具软饰的搭配上,都需要精心的构思。和谐是永恒的主题,温馨是最终的目的。大家觉得这套实景案例怎么样?是不是很优秀?您要是还在纠结怎么选择苏州装修公司的话,可以抽时间来红蚂蚁装饰门店来了解咨询,我们20年专注高品质家装,您一定会有不小的收获哟!
请认真填写您的正确信息
2025-12-19 16:24:00
正确的装修顺序是什么呢?装修时间几点到几点不算扰民呢?今天小编为大家带来的是正确的装修顺序和装修时间,希望对大家在装修房屋的时候能有所参考,下面一起来看看吧!
2025-12-16 14:53:00
美式风格装修以其自由、舒适和实用主义的特质,成为现代家居设计中广受欢迎的风格选择。这种风格融合了传统美式的历史感与现代设计的简洁性,创造出既温馨又时尚的居住空间。
2025-12-13 14:36:00
装修房子应认识的知识点有哪些呢?装修房子应该注意哪些细节呢?今天小编为大家带来的是装修房子应认识的知识点和装修房子应该注意细节,希望对大家在装修房屋的时候能有所帮助,下面一起来看看吧!
2025-12-12 14:53:00
装修新房是件令人兴奋的事,但装修后的入住时间却需要科学评估。本文将专业分析"装修一个月能住人吗"和"多久才能正式入住"这两个核心问题,帮助您做出安全决策。
2025-12-11 14:04:00
装修攻略是什么呢?装修注意事项有哪些呢?今天小编为大家带来的是装修攻略大全及注意事项,希望对大家在装修房屋的时候能有所帮助,下面一起来看看吧!
2025-12-10 14:19:00
风水学作为中国传统文化的重要组成部分,对家居装修中的颜色选择有着深远影响。客厅作为家庭活动的核心区域,其颜色搭配不仅关乎美观,更与家庭运势、成员健康密切相关。本文将系统分析客厅颜色的风水禁忌与选择建议,帮助您营造和谐的家居环境。