发布时间:2022-04-15 18:22:00 点击:8830
导语:红蚂蚁集团23周年盛典丨保持竞争力,设计再升级
自苏州“2·14”“3·14”疫情以来,五县一市勠力同心,以坚定果敢的勇气和坚韧不拔的决心,外防输入、内防反弹、严守外溢,凝聚共克时艰的强大合力,为共同打赢这场硬仗竭尽全力。
提升免疫力 保持竞争力
面对严峻复杂的苏州疫情,各小区管控力度持续加码,春节复工后又停工对于各大装修公司来说都是极大的考验,但疫情防控始终是第一要务。
红蚂蚁集团积极响应政府“停下来、静下来、慢下来”的号召,在工地大面积暂缓施工的现状下,做好两码一温日常防疫,保证各部门工作的顺利进行。
居安思危、思则有备、有备无患。慢下来的当口,各部门积极应对,通过规范线上服务流程,组织技能内训等方式,全力提升企业自身的“免疫力”,时刻保持核心竞争力。红蚂蚁23年的高品质发展之路,也是不断提升的创新之路。
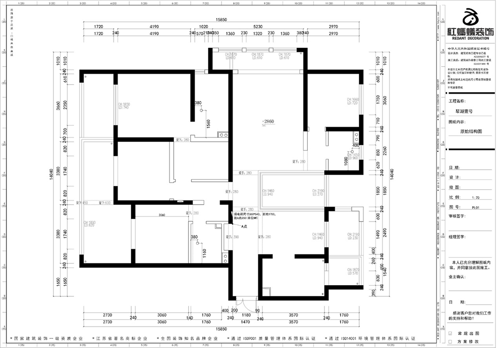
强化规范设计 助力标准施工
为进一步加强红蚂蚁集团三大品牌米克罗别墅装饰、红蚂蚁装饰、智造家整装的绘图规范,红蚂蚁设计研究院组织了多轮培训和考试,力图将设计中的图纸规范进行更为标准化、精炼化的提升。
绘图规范升级培训内容包括为新晋设计师进行系统的绘图规范讲解,严格按照集团统一标准做好后续设计,通过考试的形式检验掌握程度和实操水平;为设计中心经理进行绘图规范的审核标准培训,做到层层把关,责任到人。

对于设计团队送往设计研究院审核的整套图纸,都有相应的图纸检查评分表,其中详细的列举了数十条具体细则,譬如:原始平面结构图是否标明承重墙位置、柱体结构、梁体尺寸、强弱电箱高;平面布置示意图上是否有功能标识、各功能区编号等,分门别类由设计总监或总经理进行严格打分,将提升标准规范落到实处。


红蚂蚁集团重视图纸的规范性,并不仅限于画面的美观度,更重要的是这套标准精炼的规范图纸所承载的对后续施工“无安全隐患、工艺可操作”的有力保障。

红蚂蚁集团砥砺前行23载,不断提升自身综合实力,用企业自身规范创新性的发展,领先于行业。李荣董事长表示“不管社会还是市场的客观条件如何,我们唯一能做的就是不断琢磨客户需求,以客户为中心,精进企业各个维度的驱动力,保持学习力,修炼企业内功”,这也是红蚂蚁集团23年保持领先的秘诀之一。
红蚂蚁集团23周年盛典
5.14-5.15 红蚂蚁集团23周年盛典线上咨询已启动,微信搜索关注“红蚂蚁装饰集团”公众号,开启高品质生活之旅。

请认真填写您的正确信息
2025-12-19 16:24:00
正确的装修顺序是什么呢?装修时间几点到几点不算扰民呢?今天小编为大家带来的是正确的装修顺序和装修时间,希望对大家在装修房屋的时候能有所参考,下面一起来看看吧!
2025-12-16 14:53:00
美式风格装修以其自由、舒适和实用主义的特质,成为现代家居设计中广受欢迎的风格选择。这种风格融合了传统美式的历史感与现代设计的简洁性,创造出既温馨又时尚的居住空间。
2025-12-13 14:36:00
装修房子应认识的知识点有哪些呢?装修房子应该注意哪些细节呢?今天小编为大家带来的是装修房子应认识的知识点和装修房子应该注意细节,希望对大家在装修房屋的时候能有所帮助,下面一起来看看吧!
2025-12-12 14:53:00
装修新房是件令人兴奋的事,但装修后的入住时间却需要科学评估。本文将专业分析"装修一个月能住人吗"和"多久才能正式入住"这两个核心问题,帮助您做出安全决策。
2025-12-11 14:04:00
装修攻略是什么呢?装修注意事项有哪些呢?今天小编为大家带来的是装修攻略大全及注意事项,希望对大家在装修房屋的时候能有所帮助,下面一起来看看吧!
2025-12-10 14:19:00
风水学作为中国传统文化的重要组成部分,对家居装修中的颜色选择有着深远影响。客厅作为家庭活动的核心区域,其颜色搭配不仅关乎美观,更与家庭运势、成员健康密切相关。本文将系统分析客厅颜色的风水禁忌与选择建议,帮助您营造和谐的家居环境。